
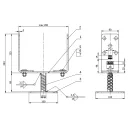
Erős kivitelű állítható szélességű oszloptalp, lefúrható talppal
Tűzihorganyzott felület
S235 acélból
ETA tanúsítvány
Kengyel magasság: 135 mm
Kengyel szélesség: 0-200 mm
Kengyel hossz: 60 mm
Kengyel lemezvastagság: 4 mm
Talplemez méret: 100x100 mm
Talp-kengyel távolság: 65 mm
Talp lemezvastagság: 4 mm
Teljes magasság: 204 mm
4 db furat a talpon ∅12 mm
2x5 db furat a kengyelen ∅12 mm
Középen bordázott acél rúd tartja a kengyelt (∅18 mm)
*A terméket bemutató képek és adatok tájékoztató jellegűek, a valós termék megjelenése, paraméterei eltérhetnek.